Sambruk
Kannikhøyden skal bli en kulturell møteplass som fremmer fellesskap og aktivitet. Sambruk og samarbeid mellom teateret og museet vil bidra til å gi alle tilgang til et større mangfold av kunst- og kulturopplevelser.
Ny kulturell møteplass
Besøkende skal komme til en lett tilgjengelig, åpen og inkluderende møteplass. Det planlegges for felles foajé, servering og vrimleareal, og publikum vil kunne oppleve deler av både museets og teaterets virksomhet herfra. Arealet skal inspirere til samarbeid mellom institusjonene og til samarbeid med for eksempel kulturliv, frivillighet næringsliv og andre.
De nye arealene vil være tilrettelagt for produksjon og formidling av kunst og kultur av høy kvalitet. Samlet sett vil dette gi byen og regionen en ny og attraktiv møteplass, hvor alt er under samme tak.

Sambruk mellom teateret og museet gir reduserte investeringskostnader og driftskostnader fordi de to institusjonene kan dele på både areal, funksjoner og ansatte. Samlet sett vil den foreslåtte utbyggingen redusere både kostnader og arealbehov sammenlignet med en delt lokalisering. Sambruk gir også gevinster i form av stordriftsfordeler, økt samhandling og andre synergieffekter.

Nye parker for rekreasjon og opplevelser
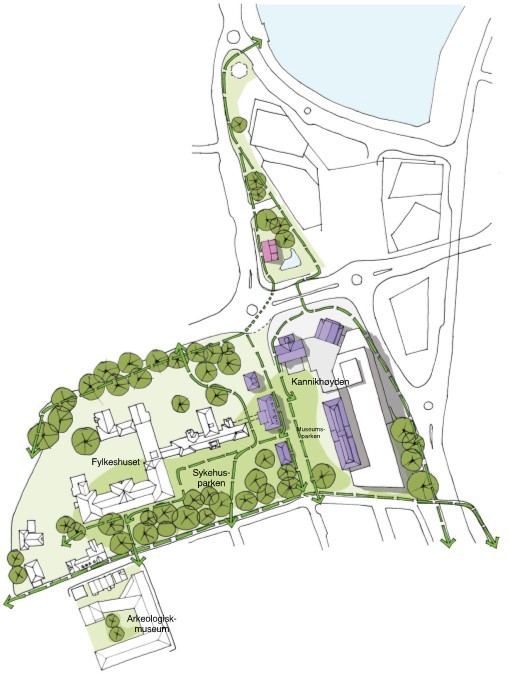
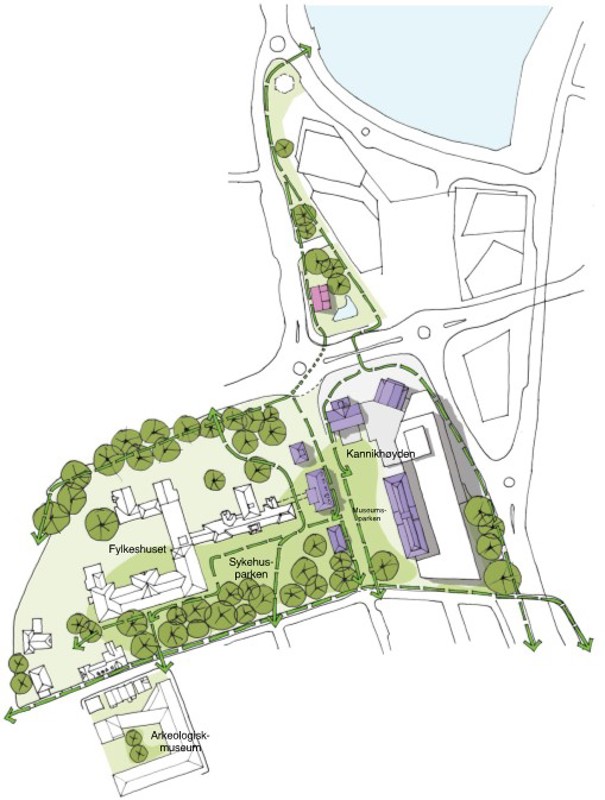
Kannikhøyden har parker og grønne lunger med et stort potensiale for rekreasjon, aktivitet og opplevelser. Når parken langs Muségata åpnes opp, blir det et nytt felles publikumsareal for museet og teateret.
Museumsparken kan kobles sammen med den eksisterende Sykehusparken ved Fylkeshuset og Arkeologisk museum, og innbyggerne får et bedre nærmiljø med nye grønne forbindelser.
Publikum vil møte en åpen, inkluderende og attraktiv park ved Muségata, i tråd med Akropolis-visjonens mål. Det kan tiltrekke flere enn dem som vanligvis oppsøker teater- og museumstilbudet, og det vil skape et bedre nærmiljø for innbyggerne.

Rogaland fylkeskommune har i sitt arbeid med nytt fylkeshus undersøkt mulige funksjoner i den store parken foran Fylkeshuset. Det er lagt til rette for lekeplass som er inspirert av museets utstillinger, og at naturmangfold i parken kan benyttes i undervisningsopplegg.
Museumsparken strekker seg også mot teateret. Taket på nybygget mellom teaterhallen og det gamle teateret kan bli en del av parken og gi utsikt mot sentrum. Forplassen til teateret, Leiv Isaksens plass, kan kobles bedre på sentrum gjennom en planfri overgang til stasjonsområdet og bli et aktivt byrom som flere enn gjestene ved teateret vil ha glede av. Riving av eksisterende scenetårn vil gjøre deler av Stavanger museum synlig i bakgrunnen.